Residencial
3.000 m²
Rio de Janeiro - RJ
2021
PIIMO Empreendimentos Imobiliários
Em desenvolvimento
Tecendo memória
O valor afetivo das memórias arquitetônicas do Rio de Janeiro são um ponto de partida para o projeto. Texturas como a madeira ripada e o vazado comum aos cobogós e brises são redesenhadas, formando uma trama volumétrica. Trazer à tona essas lembranças foi um dos objetivos do projeto e, por isso, o conceito da trama do tempo e dos afetos foi também norteador da proposta.
Com esses elementos em mente, as diversas linhas traçadas verticalizam a construção de forma esbelta e alinham as diferentes camadas e materiais usados no projeto ao criar um tecido que abrigue o morar no interior do edifício. O uso de elementos ripados em tom escuro protegem a chegada da rua e aquecem o interior das casas, além de promover a integridade visual do edifício. Ao mesmo tempo, o ritmo dos brises das varandas emoldura a vista por seus espaços vazados e filtra a relação com a rua através de uma camada clara e iluminada.
Assim, uma arquitetura composta por detalhes se torna um lugar ainda mais especial para seus moradores e para a cidade, com o privilégio de ser vizinha ao projeto de um dos grandes símbolos da arquitetura carioca, Niemeyer, dialogando com o mesmo através do respeito à memória.
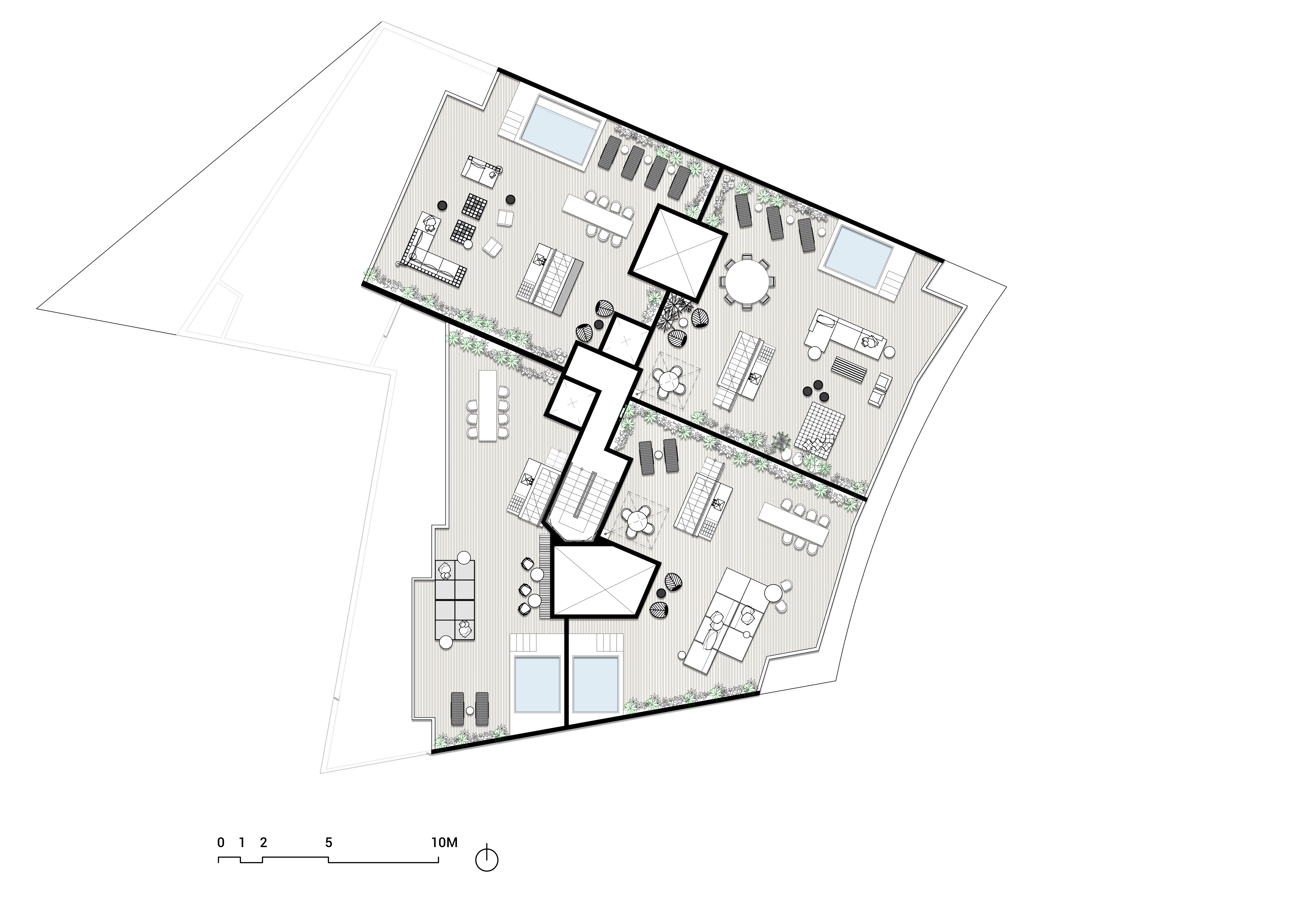
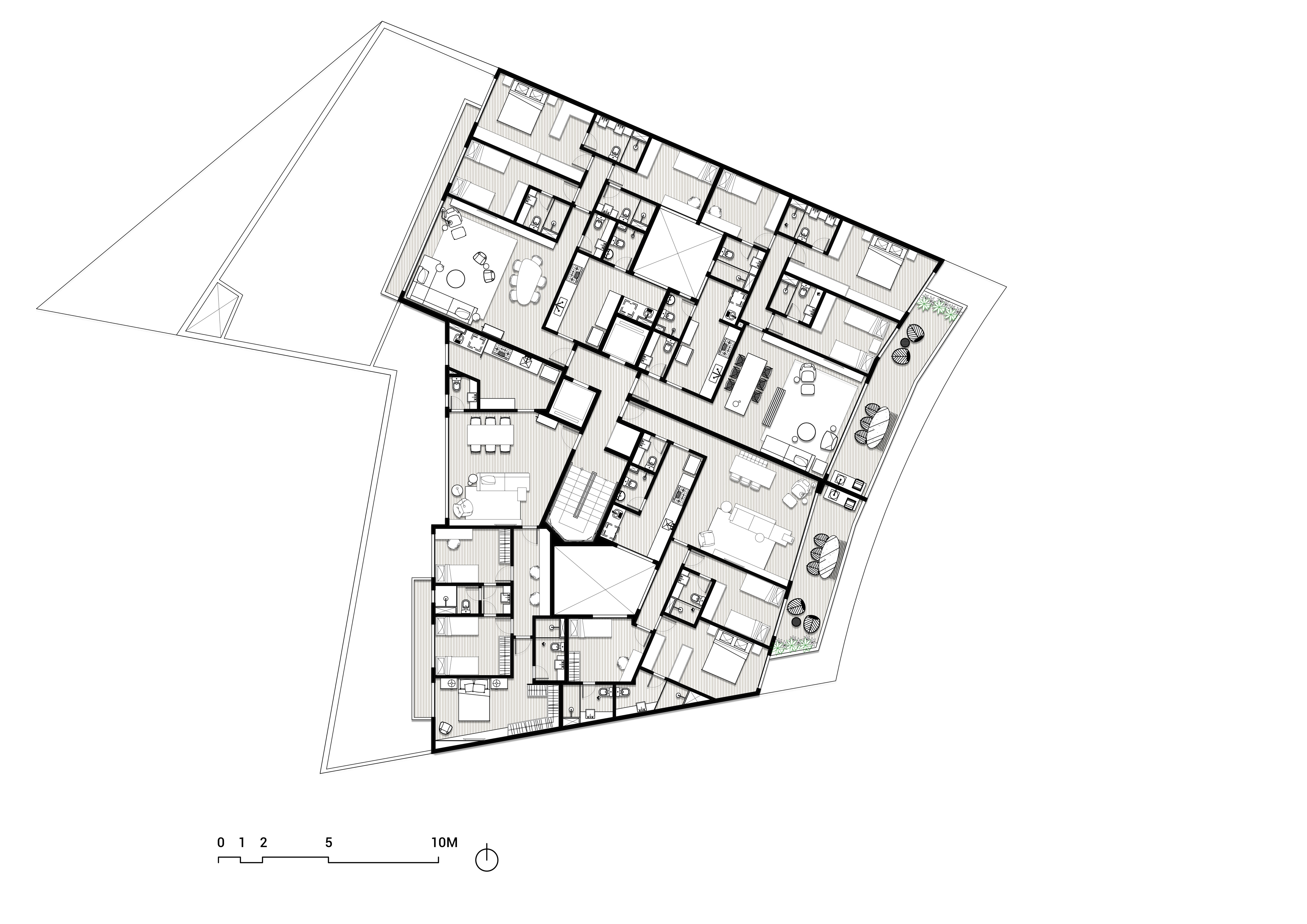
A abertura prolongada dos ambientes internos, sobretudo da sala, para as varandas é um dos grandes diferenciais do projeto. Com a melhor integração entre espaço interno e espaço externo, a moradia parece não apenas mais ampla como mais iluminada. A mesma intenção ocorre ao longo do edifício, com a criação de diversos espaços livres para o encontro e o convívio, como jardins e terraços dentro das unidades. A possibilidade de estreitar nossa relação diária com a luz, o céu, o vento, ou seja, o ar livre em geral, é um dos pontos mais especiais da arquitetura, e está alinhado com a busca pela tranquilidade e abrigo no morar atual.
MAIS INFO
projeto de arquitetura, fachadas, interiores, comunicação visual e material de vendas Celso Rayol e Fernando Costa
coordenadores de projeto André Caterina, Daniel Osório
equipe Leonardo Leal, Eduarda Volschan, Luisa Linden
imagens Studio Vir