PINHEIRO
GUIMARÃES 75
Residencial
2.100m²
Botafogo, Rio de Janeiro - RJ
2013
FMAC
Construído
Ordenação e transição
Situado no bairro de Botafogo, na Zona Sul do Rio de Janeiro, esse projeto faz parte do processo de valorização e crescimento vertical que interessa a área nos últimos anos. O questionamento dos modelos convencionais adotados no bairro e o aproveitamento das características próprias do lote foram as premissas do projeto.
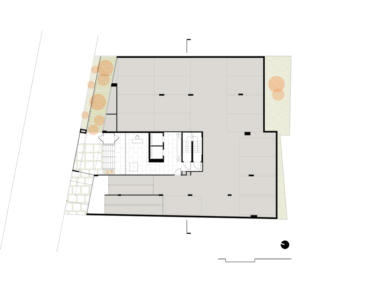
Apesar de surgir numa rua movimentada, o lote se destaca pela presença de uma bela e tranquila mata na parte posterior, parte integrante do Parque Municipal ‘Fonte da Saudade’. Logo, o primeiro conceito para o projeto das fachadas foi a procura de um diálogo entre os diferentes elementos, criando uma transição entre o movimento da cidade e a tranquilidade da natureza.
O limite do edifício é recuado para dentro do afastamento, permitindo a criação de um jardim como principal elemento de transição entre a rua e o edifício. Essa ação é fundamental para a requalificação e a expansão do passeio público, encorajando a apropriação pedonal, assim como o uso de bicicletas no restante do bairro. Os perfis verticais em madeira e alumínio branco no embasamento do edifício se propõem como filtro em relação à rua, e o grande plano envidraçado da entrada garante a continuidade visual entre o hall e o espaço público.
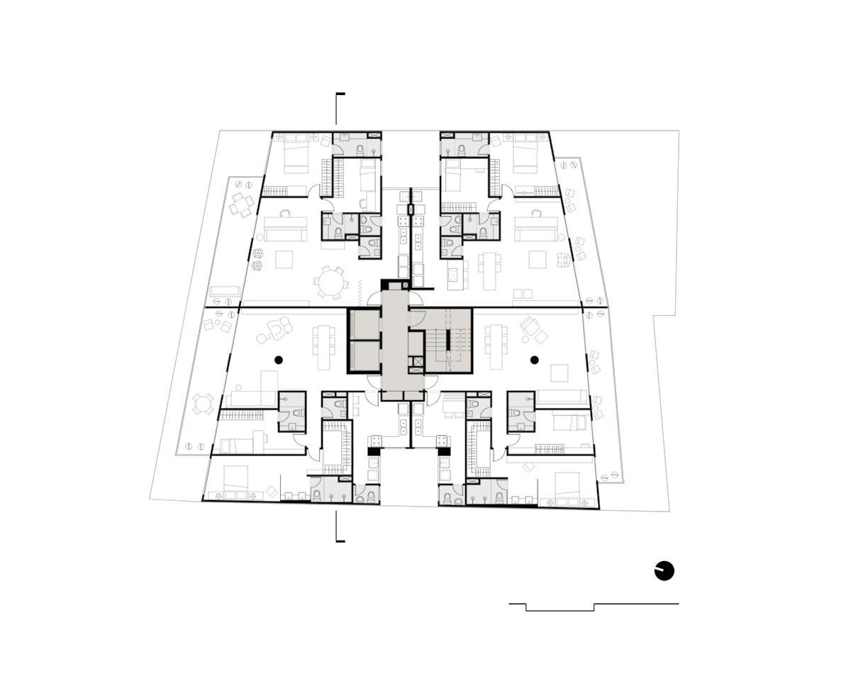
A fachada foi desenhada de forma a ordenar seus diversos elementos: varandas, janelas e embasamento são unificados por grupos, através da materialidade e do tratamento cromático.
O projeto de interiores se baseia no conceito de ‘expansão’, trabalhando principalmente com a paleta de cores para enfatizar as profundidades do espaço através de claros e escuros. O projeto é cuidado nos detalhes, explorando diferentes texturas - desde o cimentado até a madeira e o tecido -, para criar interessantes contrastes de materialidade. A proposta de mobiliários complementa a definição dos espaços, sendo totalmente integrada ao projeto arquitetônico, como no caso das luminárias escolhidas para o hall de acesso ao edifício. A comunicação visual também se integra ao projeto, desenvolvendo um papel central na caraterização e personalização dos espaços coletivos. Até ambientes e equipamentos comuns, como estacionamento e caixas de correio, ganham um tratamento especial, tornando-se elementos de destaque no design. O estacionamento, especialmente, foi aproveitado para promover a utilização de bicicletas para o deslocamento ecológico no bairro e na cidade.
MAIS INFO
projeto de fachada, interiores e paisagismo Celso Rayol e Fernando Costa
coordenadores de projeto Daniel Osório, Lúcia Andrezo, Francisco Meyer
equipe Ana Clara Meirelles, André Caterina, Beatriz Aguiar, Beatriz Oliveira, Felipe Andrade, Laura Basile, Marcia Rocha, Thiago Marques, Zander Vasques
consultores
estrutura GMA Engenharia e Projetos Ltda.
instalações Armando Fernandes
imagens Archigraph e edição Cité Arquitetura
marketing Total Right
fotografia André Nazareth e Celso Rayol