SEND
Residencial
845,22 m²
Centro, Rio de Janeiro - RJ
2019
WTorre Empreendimentos Imobiliários S.A e Rio Realty
Em desenvolvimento
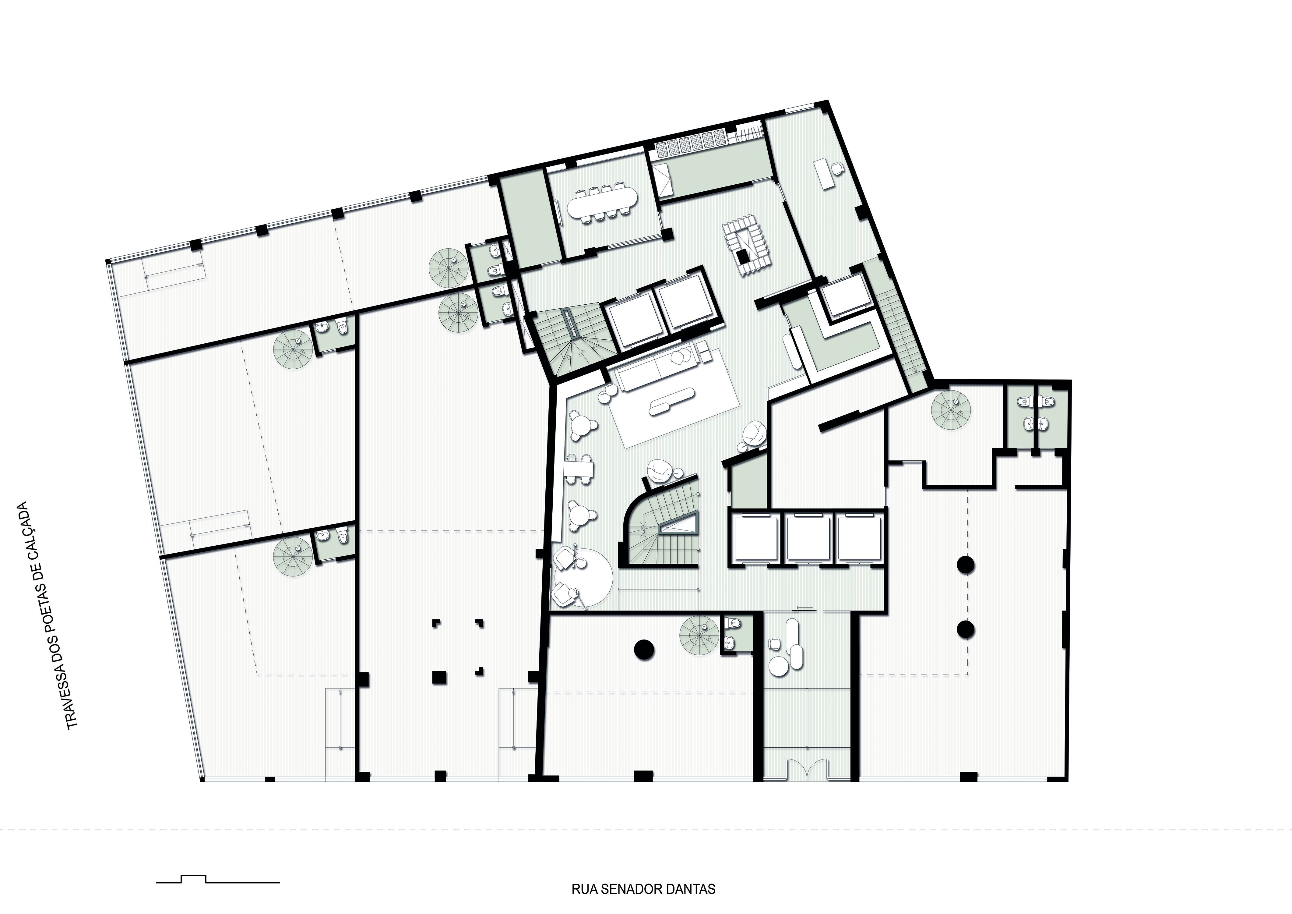
Nova perspectiva
A proposta de dar nova vida ao edifício situado na rua Senador Dantas trouxe a possiblidade de estabelecer uma nova visão para uma das mais importantes áreas da cidade: o Centro do Rio. Vista durante um longo tempo exclusivamente como espaço de trabalho, agora revela um enorme potencial para o habitar. Assim, o projeto surge na sensível articulação entre as questões contemporâneas das nossas cidades, do respeito à história e dos edifícios que contribuíram para a construção da região.
Enquanto os volumes originais do edifício são enfatizados por cores claras na fachada, as novas volumetrias em tom escuro se acoplam de maneira sutil a pré-existência. São inserções de vitalidade na edificação. Espaços como o rooftop são pontos centrais para o surgimento dessa nova vida. Os espaços de convívio irradiam a vida interior através da iluminação das janelas e perfis metálicos, transformando o volume em uma luminária urbana que ativa a cidade, possibilitando um lugar mais seguro e acolhedor.
MAIS INFO
projeto de arquitetura Celso Rayol e Fernando Costa
coordenador de projeto Daniel Osório
coordenador de interiores André Caterina
equipe Daniel Nardelli, Leonardo Leal, Luiza Melo, Romário dos Anjos, Luiza Loureiro, Eduardo Romano, Mariana Alonso, Mateus Fragoso, Luiza Melo, Ana Terra Vettori, Pedro Brito
construção Arq Solutions Construtora
fornecedores
Portobello;
Ibratin Tintas e Texturas;
Harmony Stones;
Urias Serviços de Marcenaria e Serralheria;
imagens Studio VIR


