URQUIZA
Residencial
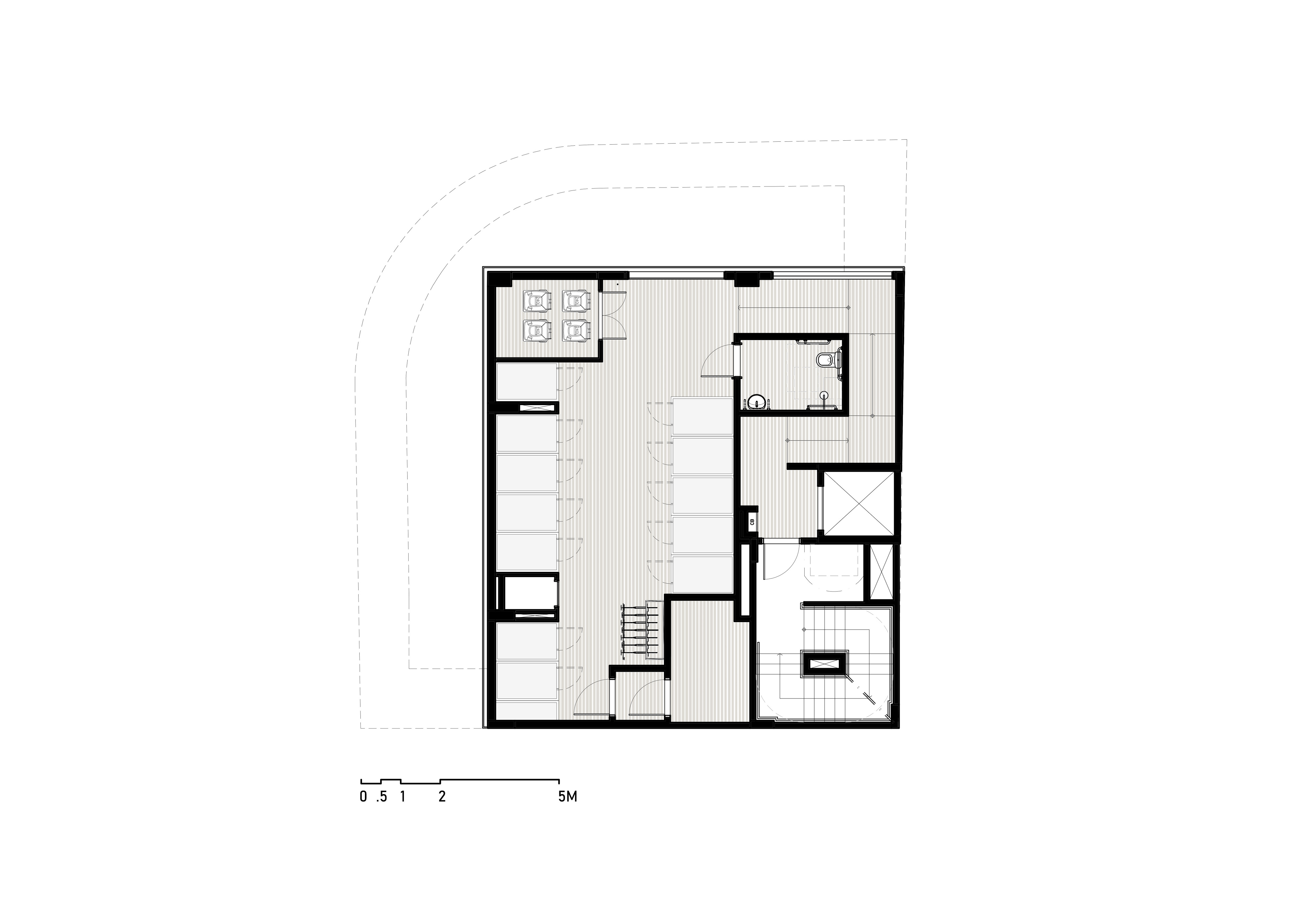
714 m²
Leblon, Rio de Janeiro - RJ
2021
Horto Capital
Em desenvolvimento
714 m²
Leblon, Rio de Janeiro - RJ
2021
Horto Capital
Em desenvolvimento
Esquina do carioca
As nuances cariocas inspiraram esse projeto através do contraste de atmosferas no Leblon. A descompressão do horizonte sobre o mar associado à calmaria das curvas de ondas e montanhas convive em harmonia com a intensidade da vida urbana, do burburinho da praia e alegria das noites boêmias. Essa variação de densidades é parte do repertório da arquitetura, de traçado firme e suave ao mesmo tempo, mas também do cotidiano do carioca, que em meio às turbulências da cidade enxerga no encontro e na beleza do Rio a calma em seu dia-a-dia.
MAIS INFO
MAIS INFO
projeto de arquitetura Celso Rayol e Fernando Costa
coordenador de projeto Daniel Osório, Lúcia Andrezo, Thiago Godoy, Vanessa Moreira, André Caterina
equipe Mateus Keiper, Leonardo Leal, Bianca Naylor, Júlia de Queiroz, Giovanna Soares, Nicholas Manso
imagens Estudio Lima
coordenador de projeto Daniel Osório, Lúcia Andrezo, Thiago Godoy, Vanessa Moreira, André Caterina
equipe Mateus Keiper, Leonardo Leal, Bianca Naylor, Júlia de Queiroz, Giovanna Soares, Nicholas Manso
imagens Estudio Lima


